Clicky

Denenchofu 4
  •  View from the street

    View from the street

  •  South Terrace

    South Terrace

  •  South Terrace

    South Terrace

  •  North Facade

    North Facade

  •  East Terrace

    East Terrace

  •  Entrance

    Entrance

  •  Entrance and Office

    Entrance and Office

  •  Staircase and corridor towards living room

    Staircase and corridor towards living room

  •  East Patio

    East Patio

  •  Stair detail

    Stair detail

  •  East side patio

    East side patio

  •  East side patio towards living room

    East side patio towards living room

  •  East side patio

    East side patio

  •  East side patio

    East side patio

  •  Stair from basement parking to patio

    Stair from basement parking to patio

  •  Breakfast room towards kitchen and living room

    Breakfast room towards kitchen and living room

  •  Breakfast room towards kitchen and living room

    Breakfast room towards kitchen and living room

  •  Living dining towards breakfast room

    Living dining towards breakfast room

  •  Living Dining room

    Living Dining room

  •  Living Dining room

    Living Dining room

  •  Living Dining room

    Living Dining room

  •  Living Dining room

    Living Dining room

  •  Living Dining room

    Living Dining room

  •  Second floor corridor towards family room

    Second floor corridor towards family room

  •  Second floor corridor towards main bedroom

    Second floor corridor towards main bedroom

  •  Second floor corridor towards family room

    Second floor corridor towards family room

  •  Bedroom

    Bedroom

  •  First floor guest washroom

    First floor guest washroom

  •  Main Bedroom bathroom

    Main Bedroom bathroom

  •  Japanese Bathroom

    Japanese Bathroom

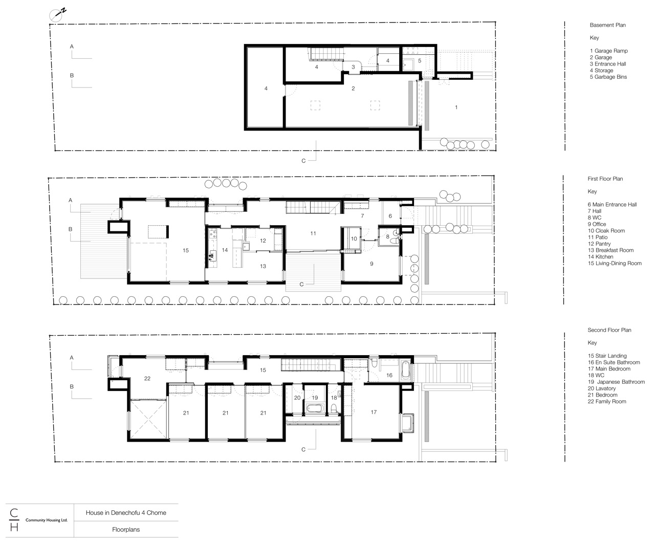
  •  Floorplans

    Floorplans

  •  Sections

    Sections

Denenchofu 4

Town house located in the area of Denenchofu 4 chome, Tokyo. Due to the narrow and elongated shape of the plot, the project articulate its spaces in a linear manner, gradating them from the most public against the street to the most private towards the back courtyard.

Spaces are linked by a corridor that defines also the route of the facilities installations, which run parallel to it. This strategy defines three clear spatial “stripes” that define the project, the living area stripe, the facilities stripe and the circulation one.

The approach to materials and finishings aims to control the size of spaces emphasizing surfaces over lines or edges and restraining the color palette used all over the project.

Use: Residential                
Area: 335 m2
Architecture: Community Housing LLC
Builder: Gikaku KK
Property Manager: Abitare Co.
Status: Completed in January 2009

Photos: ©Ogawa Shigeo

日本語